Laboratorio in vendita

San Vittore Del Lazio, Via san giovanni
€ 89.000
1 locale 1 locale
660 Mq 660 Mq
1 bagno 1 bagno

Laboratorio in vendita

San Vittore Del Lazio, Via san giovanni

Descrizione annuncio

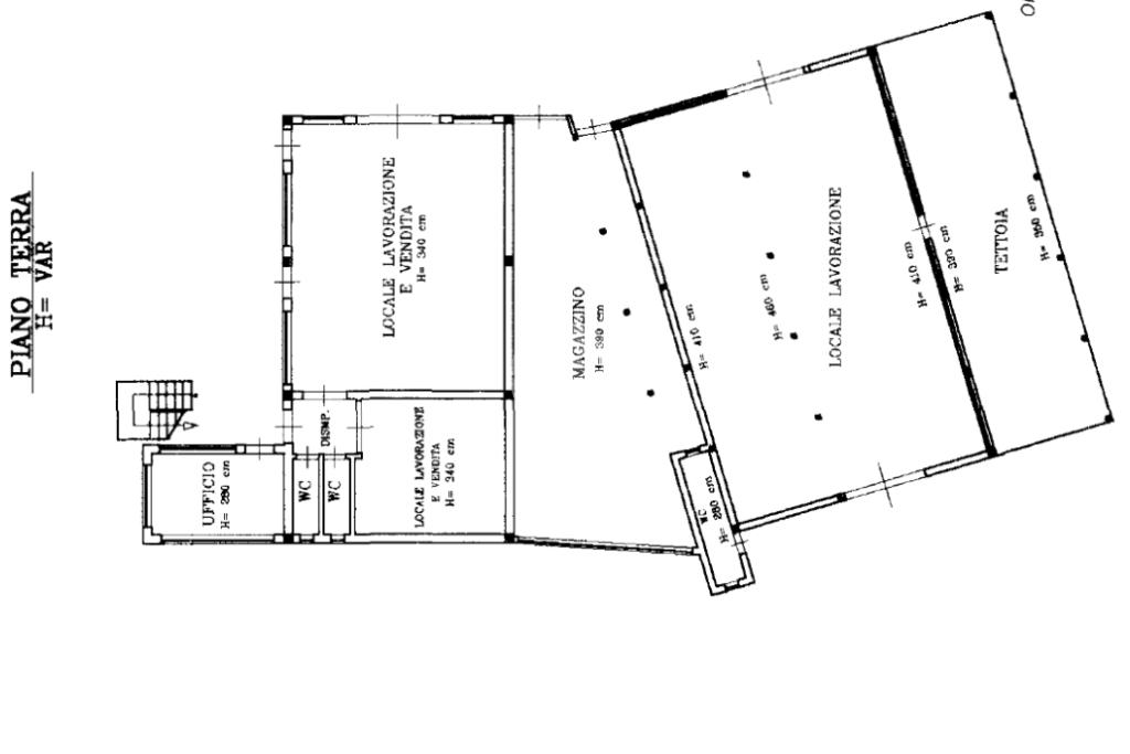
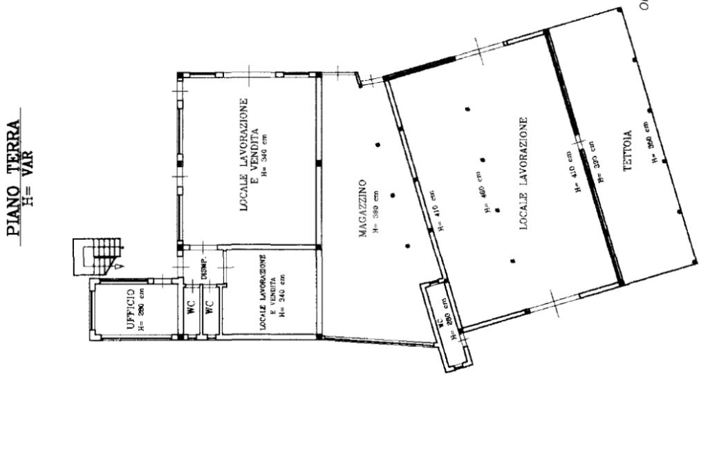
San Vittore del Lazio (FR), via San Giovanni, l'agenzia Tecnorete propone in esclusiva la vendita di un intero edificio adibito a laboratorio artigianalel. L'immobile è situato a 2 km dal casello autostradale di San Vittore del Lazio, lungo la strada statale che lo collega alla Via Casilina, al confine tra Lazio, Campania, e Molise.

L'edificio raggiunge una superficie totale di 660 mq, con terreno pertinenziale della superficie catastale totale tra coperto e scoperto di mq 2.530 circa.

Mostra tutto

Nelle vicinanze

Trasporto pubblico Trasporto pubblico
Rocca d'Evandro - San Vittore
Rocca d'Evandro - San Vittore
1,6 Km
Scuole Scuole
Scuole
2,9 Km
Ristoranti Ristoranti
Agriturismo Crete Gialle
2,8 Km
Mostra tutto

Caratteristiche

Rif.:
61149041
Piano:
2 di 1 (Piano terra)
Posti auto:
10
Condizionamento:
Assente
Ascensore:
No
Riscaldamento:
Assente
Mostra tutto
Prezzo Prezzo
€ 89.000
Rata mutuo Rata mutuo
€ 422 / mese
Spese annue Spese annue
€ 0
Proponi il tuo prezzoProponi il tuo prezzo

Altre caratteristiche

Descrizione dei locali
Bagno Con Finestra

Classe Energetica

G
G
G
G
G
G
G
G
G
EP globale non rinnovabile:
180.00 kW h/m² anno
EP globale rinnovabile:
180.00 kW h/m² anno
EP invernale del fabbricato:
EP estiva del fabbricato:
Anno di costruzione:
1980
Riscaldamento:
Assente

Ti interessa visionare l'immobile?

Fissa un appuntamento  Fissa un appuntamento

Richiedi informazioni

Clicca su Leggi per aprire l'informativa
* Questi campi sono obbligatori

Calcola il tuo mutuo

Semplice e senza impegno
Anticipo

( % )
Mutuo

( % )

pochi semplici passi

inserisci i tuoi dati
Questionario completato
Grazie per aver richiesto un appuntamento senza impegno con un nostro Consulente del Credito e Assicurativo.

Hai inserito correttamente tutti i dati necessari e a breve riceverai una e-mail con un link da convalidare per inviare i tuoi dati.
Affiliato
Mediazioni Per L'Impresa Srl
Viale Ivanoe Bonomi, 24 03043 Cassino (FR)

Il nostro staff


  • Riccardo Giopp
    Affiliato
Viale Ivanoe Bonomi, 24 03043 Cassino (FR)
Zona: Cassino
Mostra su mappa
Orari: Lunedi 09:00 - 13:00 15:30 - 19:30 Martedì 09:00 - 13:00 15:30 - 19:30 Mercoledì 09:00 - 13:00 15:30 - 19:30 Giovedì 09:00 - 13:00 15:30 - 19:30 Venerdì 09:00 - 13:00 15:30 - 19:30 Sabato 09:00 - 13:00 Domenica Chiuso
Affiliato
Mediazioni Per L'Impresa Srl
Viale Ivanoe Bonomi, 24 03043 Cassino (FR)

2026 Tecnocasa Franchising S.p.A. - P. IVA 08365160152 - Via Monte Bianco 60/A 20089 Rozzano (MI). Ogni agenzia ha un proprio titolare ed è autonoma. Privacy policy | Policy utilizzo | Cookie policy